FOTO: ILUSTRACIJA/A.ČAVIĆ/BL PORTAL
Banjalučki Borik na prekretnici: Novi neboderi u novom planu, borba za parking i zelenilo FOTO
23.03.2026. | 15:53Sutrašnja sjednica Skupštine grada Banjaluka mogla bi donijeti jednu od najvažnijih odluka za budućnost naselja Borik, jer će se pred odbornicima naći izmjene regulacionog plana koje predviđaju novu gradnju, ali i otvaraju pitanje koliko će jedno od najuređenijih naselja u gradu uspjeti da sačuva svoj identitet.
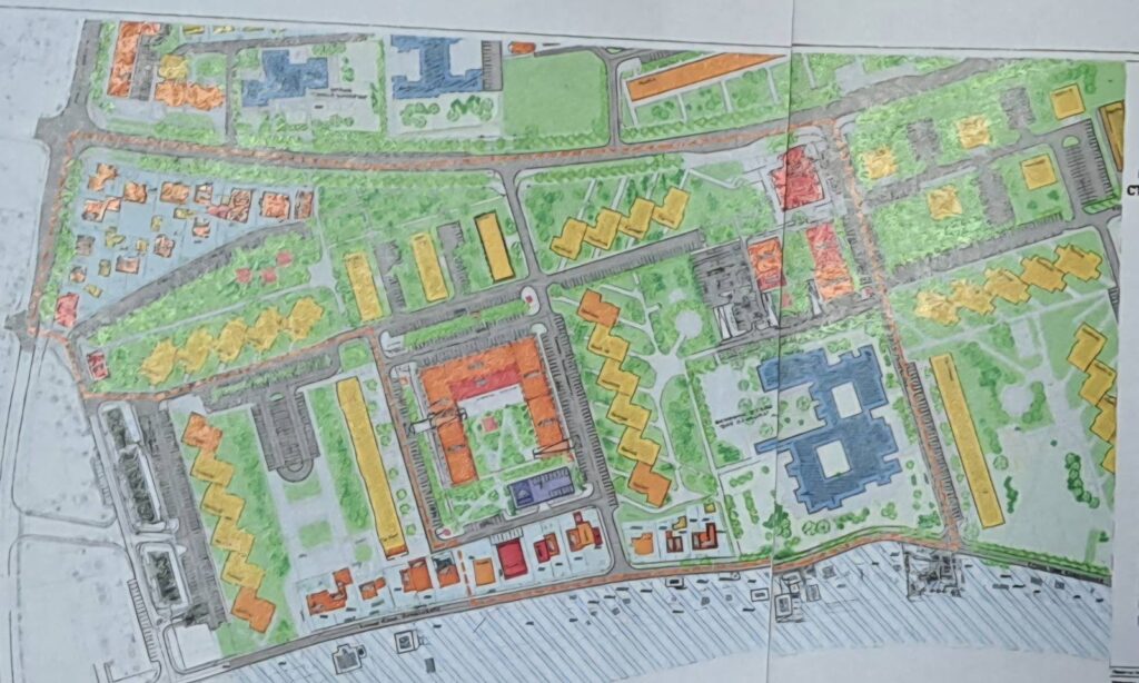
Riječ je o prostoru od oko 10,4 hektara, omeđenom Bulevarom vojvode Živojina Mišića te ulicama Relje Krilatice, Save Kovačevića, Majke Knežopoljke, Novice Cerovića i Gundulićevom, gdje su planirane najznačajnije intervencije – od izgradnje novih stambeno-poslovnih objekata do uvođenja novih javnih sadržaja.
Borik, smješten nadomak centra Banjaluke, već decenijama važi za planski građen kvart sa jasno definisanim odnosom između zgrada, zelenih površina i prostora za svakodnevni život. Upravo zbog toga svaka intervencija u ovom prostoru izaziva posebnu pažnju, jer se ne radi o periferiji, već o zoni u kojoj već živi veliki broj ljudi i koja je praktično produžetak centra grada.
Plan predviđa više konkretnih tačaka intervencije koje će najviše promijeniti izgled naselja.
Gdje niču nove zgrade?
Najznačajnija je lokacija bivše pijace, odnosno privremene tržnice, gdje je predviđena izgradnja dva visoka objekta – nebodera. Iako je prvobitni nacrt predviđao spratnost do 15 etaža, nakon primjedbi građana i javne rasprave ta visina je smanjena, pa konačno rješenje predviđa objekte visine oko 13 i 14 spratova.
U istoj zoni planiran je i novi kulturni centar sa parkovskim sadržajem, čime bi ovaj prostor, koji danas ima privremenu i zapuštenu funkciju, trebalo da dobije potpuno novu namjenu i postane javni sadržaj za stanovnike Borika.
Druga ključna lokacija je prostor nekadašnje „Fruktone“, gdje je predviđena izgradnja više stambeno-poslovnih objekata spratnosti do osam ili devet spratova.
Time se industrijska i zapuštena zona transformiše u stambeni blok, što je jedna od najvećih urbanističkih promjena u ovom dijelu grada u posljednjih nekoliko decenija.
Plan zahvata i širi prostor između stambenih blokova, uključujući reorganizaciju saobraćaja, pješačkih zona, ali i javnih površina, čime se pokušava prilagoditi postojeća struktura novim potrebama.
Stanivnici Borika žele da se očuvaju zelene površine
Ipak, i pored planiranih sadržaja, ključna tema koja dominira među građanima jeste sudbina zelenih površina, koje za mnoge predstavljaju osnovni razlog zbog kojeg su izabrali da žive upravo u ovom naselju.
Stanari okolnih zgrada otvoreno se protive izmjenama, naglašavajući da Borik već gubi svoj prepoznatljivi karakter.
„Ovdje sam iz Borika. Baš u ovim lamelama živim. Na ovom prostoru se od ranog jutra smjenjuju generacije, od starijih, mlađih, djece koja se igraju ovdje i koja stvarno koriste ovaj prostor. Tako da, svakako podržavam da ovaj prostor ostane ovakav kakav jeste“, navodi Vanja iz Borika.
Iako je svjesna problema parkinga, ističe da očuvanje zelenila ima veću vrijednost za svakodnevni život.
Sličnog je mišljenja i Aleksandar, koji upozorava na direktne posljedice koje bi promjene mogle imati.
„Ovo zelenilo ne bi smjelo da se ukloni. Ovo je veliko naselje, mnogo se djece igra baš na ovoj površini, i ako bude beton, nećemo imati gdje da odvedemo djecu da se igraju. Ovdje sam se i ja igrao kada sam bio dijete. Ovu površinu bi trebalo urediti, ali ostaviti prvobitnoj namjeni da bude zelena površina za odmor i igru“, kaže Aleksandar.
Da Borik već gubi ono po čemu je bio prepoznat smatra i Vlajko.
„Mislim da se zelena površina uopšte ne treba dirati. Već nestaju zelene površine. Ovo je bilo jedno od rijetkih naselja sa mnogo zelenila, te sam upravo zato i kupio stan ovdje. Stan smo prodali jer naselje gubi zelene površine i svoj identitet. Parking jeste potreban, ali više je potreban zeleni prostor za igru i odmor“, naveo je Vlajko.
Najviše primjedbi na tri pitanja
Ovakvi stavovi građana jasno su se vidjeli i tokom javnog uvida, kada je na plan pristiglo čak 77 primjedbi, od čega je veliki broj bio identičan, što govori o širokom nezadovoljstvu stanovnika.
Najčešće zamjerke odnosile su se na tri ključna pitanja, a prvo je definitivno pitanje parkinga.
Građani su upozoravali da ni postojeće stanje sa parkingom ne zadovoljava potrebe, te da nova gradnja, posebno neboderi, dodatno pogoršava situaciju. Ukazivali su i na mogućnost ukidanja postojećih parking mjesta i nejasno definisanu izgradnju javne garaže.
Drugi veliki problem je spratnost objekata. Posebno su osporavani neboderi od 14 i 15 spratova, uz tvrdnje da takva gradnja ne odgovara postojećem konceptu naselja i da može uticati na kvalitet stanovanja – od osunčanosti do ventilacije prostora.
FOTO: AI ILUSTRACIJA
Treća ključna tema bilo je zelenilo. Dio građana je izrazio bojazan da će nova gradnja i parking površine dovesti do smanjenja postojećih zelenih zona, pa čak i ugroziti prostor u blizini škole.
U primjedbama je posebno isticano i pitanje kapaciteta osnovne škole „Vuk Karadžić“, uz upozorenje da povećanje broja stanova znači i više djece, što postojeća infrastruktura možda neće moći da prati.
Grad obećava nova parking mjesta
Plan formalno pokušava odgovoriti na dio ovih problema. Predviđeno je povećanje broja parking mjesta na oko 400, kao i izgradnja podzemne garaže kapaciteta oko 130 mjesta.
Ipak, izgradnja garaže nije jasno definisana kao obaveza i zavisi od investitora, što znači da ostaje otvoreno pitanje da li će ovo rješenje zaista biti realizovano.
S druge strane, plan uvodi i određene standarde kada je riječ o zelenilu, uključujući nove parkovske površine i uređenje zapuštenih lokacija, ali i savremenije pristupe poput zelenih krovova i vertikalnog zelenila. Ipak, ostaje dilema da li takva rješenja u praksi mogu nadomjestiti postojeće zelene površine koje građani već koriste svakodnevno.
Borik je građen kao naselje koje nije zamišljeno samo za stanovanje, već za život – sa prostorima za igru, odmor i boravak na otvorenom. Upravo zato odluka koja bude donesena ima težinu koja prevazilazi urbanizam.
Jer u konačnici, pitanje nije samo koliko će novih zgrada biti izgrađeno, već koliko će Borik nakon tih promjena ostati ono što je bio.
Dragan Milošević, BL portal






